SONG News September 2013 no.98
In this Issue...


A good year's yield from one black walnut tree growing in Ithaca, NY.
photo by Dr. Lawrence MacDaniels

Tuscan Castagnaccio
John Sankey

Luciano Pradal is famous for his roasted Italian chestnuts presented all winter in front of La Bottega in the By Ward Market of Ottawa. This is one of the recipes he presents.
Ingredients:
500 g chestnut flour
600 ml water
handful Sultans raisins soaked in warm water or white wine
100 g pine nuts
100 g walnut pieces
6 Tbsp olive oil
a few fresh rosemary leaves
Add sweetening, small pieces of nuts, pistachio or any other of your favourite nuts to taste.

Soak the sultana raisins in warm water or in white wine for half an hour. Sift the chestnut flour into a bowl; add the water until you obtain a liquid mixture. Add the raisin previously strained, the pine nuts, pieces of walnuts the rosemary leaves and the olive oil; keep some of all of the above for final decoration. Mix well until you obtain a smooth mixture, pour it, one centimeter thick, in a previously well oiled pan, decorate the surface with the pine nuts, the raisin, the walnuts pieces and little branches or leaves of rosemary, sprinkle some olive oil on top. Put it in a previously preheated oven at 200C for half an hour or until the castagnaccio starts to get dry and form some cracks.

A legend dating back to 1449 says that the man that eats castagnaccio offered to him by a lady will marry her!

Castagnaccio is baked, not fried, no animal fat, no gluten, no yeast. The scent and flavour of the rosemary will remind us of the summer and sunny days.

SONG Meeting July 20, 2013
Reported by Bemice Grimo

There were 9 people in attendance at the meeting held at the home of Dolf Wynia. After the big storm on Friday, we were delighted to enjoy a beautiful day.

President Ernie called the meeting to order and thanked Dolf and Ann for hosting.

Glenn Bannerman gave a report on Neil Thomas' black walnut processing equipment that has been acquired by Guelph University. It will be housed by the University and made available for SONG members who wish to use it. In view of the work being done by Glenn, it was suggested that he become Director of Research for black walnuts. He agreed and a motion was passed to make him Director of Black Walnut Research.

Some discussion was held on the status of developing a heart nut cracker since Windsor University had abandoned the project and returned the funds they had received from SONG. Ernie thought that Olga Crocker was still pursuing the project and this was to be confirmed.

The treasurer's report was adopted and a motion passed to reimburse Dolf for the cost of the lunch which was very much enjoyed by all.

There were no new nominations for executive positions or none who resigned their position, so it was decided that the current executive would serve another term. It was moved by Dolf Wynia and seconded by Glenn Bannerman that the current officers be re-elected for another term. Motion was passed.

Dolf and Anne's daughter Wendy attended. She has an avid interest in the farm and in forestation. There was also a neighbor who recently developed an interest in trees and expressed the intention to join SONG.

After lunch we all enjoyed a tour of the property and were impressed with the chestnut trees in particular, but also the variety of projects that he maintains.

Canadian Chestnut Council Announces speakers for Annual General Meeting

The Canadian Chestnut Council celebrates 25 years at its annual general meeting Saturday, October 26, 2013. The venue is The Loft, Tim Horton Children's Foundation Onondaga Farms, St. George, Ontario.

The CCC is a volunteer, non-profit, charitable and scientific organization established in 1988, dedicated to preserving the endangered American chestnut in southern Canada and its restoration to its former role as a keystone species of woodlots and forests. With the mission to restore the American chestnut, we are committed to a successful introduction of a blight resistant tree adapted to Southern Canada. The CCC's concerned members include farmers, woodlot owners, nut growers, scientists, conservationists, students and retirees in both urban and rural areas from across southern Ontario and as far afield as Nova Scotia and Alberta. New members are always welcome. The CCC has been breeding a blight resistant American chestnut in conjunction with the University of Guelph's Simcoe Research Station since 2001.

We are selecting for both nut production and timber attributes. We are at approximately mid point in the program with a goal to having blight resistant trees ready for introduction to fields or forests by 2020. We also have projects in developing various methods of propagation.

Dr. Dennis Fullbright is our featured speaker at this year's meeting. Dr. Fullbright is a professor of Plant Pathology in the Department of Plant, Soil and Microbial Sciences at Michigan State University. He is best known for his work on helping to establish an edible chestnut industry in Michigan. He is president of the Northern Nut Growers Association and is the Michigan State University advisor to three nut grower groups. His current focus in chestnut research is using the naturally occurring biological control of chestnut blight, called hypovirulence. hybrid trees are crossed.

He will discuss the opportunity to start chestnut farms in North America by looking at the full impact of the genus Castanea and cultivars that are currently available. Chestnut blight and other limiting factors to growth need to be considered, but may be overcome by management strategies. This is an excellent opportunity for Ontario Nut Growers and potential chestnut producers to hear from an expert with many years of experience of chestnut problems, production and harvesting practices.

Additionally, Eleanor Wood, an accomplished motivational speaker, will enrich us with her contagious sense of humour as she talks about her experiences as a farmer, wife and mother. Her unique view of the world embraces the positive, emphasizes the ridiculous, recognizes the humorous and reminds us that the world couldn't possibly be as bad as we've convinced ourselves it is. Her engaging presentation will help you gain a fulfilling perspective on the lighter side of life.

The Canadian Chestnut Council breeding team will report on the current status of the breeding program. The day will culminate with a tour of the breeding nursery.

For a full agenda, further updates and contacts please view www.canadianchestnutcouncil.org See you there!

Black Walnuts
Glenn Bannerman P. Eng. ( Ret) Prof Emeritus

A Great Black Walnut Re-Awaking has commenced. Almost 30 years ago three major plantings of approximately twenty five hundred trees were planted. To the best of my knowledge nothing of this magnitude has occurred in the recorded history of Canada. Furthermore these events have been ignored for a generation.

The first planting was at the University of Guelph. The second planting was by Andrew Dixon (deceased) at his farm near Ailsa Craig north west of London, and the third planting was by Neil Thomas at his farm in Mallorytown north east of Kingston.

I believe the intention of the University and the Dixon Farm were to grow trees for the dual purpose of a nut crop and timber. The Mallorytown planting was intended to generate nuts with the shells being used for biomass, and hence little effort was expended in pruning the trees to produce a tall straight bole.

The U of G finds itself in possession of prime real estate in down town Guelph which is cluttered up with a bunch of dam trees and plans to sell in about five years for a sub-division. They have decided to generate some statistical data before the trees are cut down. They intend to harvest Black Walnuts this fall and process them with Neil's equipment. They have also indicated they will allow access to this equipment for SONG members to process their own nuts. The extent of the studies they intend to perform has not yet been revealed to date.

A decade or more ago, Neil Thomas entered into an arrangement with Algonquin College as "an industrial sponsor" to define requirements for a group of Mechanical Engineering Students to design and build equipment to provide experience in a real world situation. Thus a Black Walnut cracker was built, a nut washer, and a shell grinding-pelletizer. This equipment was used and stored at Nell's farm and was visited by SONG for a demonstration of the equipment. Neil gave up farming and sold his farm in 2012. He donated this equipment to the University of Guelph. Neil Thomas was associated with the U of G and wrote a book on Walnuts for Biomass. The new owner of Neil's farm is not a farmer and has no plans for the planting.

On August 1, 2013 Naresh Thevathasan (Prof, at U of G) along with three students and I loaded the equipment into my truck and delivered it to the U of G. If any SONG members are interested, we left behind 15 or 20 drying boxes (approximately 2 ft sq by 1.5 ft high wood open topped boxes with wire mesh bottoms) and a furnace fan. Also there is a 12 ft long plastic bath tub on a metal frame at the U of G which they do not need. I also have a bunch of "Bag a Nut" green wheels in my possession.

Andrew Dixon was associated with the U of G. He purchased a farm North East of Ailsa Craig and built a house in 1959. In 1986 Andy planted approximately 40 acres of Black Walnut Trees. He inter-cropped the 40 ft. open space between rows of trees. Andy deeded the farm to his son who sold it to Ernie Engel in 2002. In his retirement Andy wrote a book titled "A Photographic Treatise on How Best to Grow Veneer Quality Lumber." Andy died in 2002. Approximately a 10 acre field of trees adjacent to Ausable Road is in much the same condition as Andy left it, but there had been no attempt to keep the weeds under control or prune the trees. The balance of the trees have been left to revert to a natural forest for the owner's use as a private nature sanctuary. This area is sprinkled with Black Walnut seedlings and waist high weeds, but some of the trees planted in the valley are larger than the accessible trees up by the road.

In 2011 I made arrangements with the owner to keep the weeds under control in exchange for the nut crop. This year I have been successful in getting the upper orchard in the best shape since he acquired the property. A new home was constructed and the property is for sale ($1.5 million). I took on this project in order to design, build and test equipment for the harvesting and processing of black walnut suitable for small plantings modeled on Hammonds operation of purchasing nuts from the public.

Ernie Grimo has followed this model however this model does not warrant the investment in larger scale, more productive equipment. Even though he is selling kernels for $14 per pound it is doubtful that he is making any profit.

I have built a trailer mounted husker (the dirtiest operation in the process) and have processed about 65 bushels per hour. I have built and operated a harvester as well, but have not had sufficient experience with it to declare it a success. The main problem to overcome is that the machine picks up too much trash along with nuts. I hope to resolve the problem this year. As fate would have it this is an off year for the Dixon farm. I may test drive the equipment in Guelph. I am also working on separating kernels from, shells based on the j differences in the Modulus of Elasticity between shells and kernels. This is the most expensive phase of the whole operation accounting for almost half of the total cost.

The Re-Awaking aspect is that a number of large experimental plantings have been brought to the fore | which have been largely ignored for perhaps as long as two generations. What better opportunity exists for | capitalizing on efforts put forth in the mid 80's? Andy's book has put forth a number of theories. Are they j valid? What does Neil have to say? I have not read his book. Has anyone put forward a methodology to calculate the present value of immature trees for quality lumber? What factors influence the size of the nut crop? I suggest that SONG members put their heads together and come up with a possible list of things that could be learned by observation taken at these sites and hopefully the U of G will take the lead and co-ordinate such under takings.

Chestnut Grafting with Zelko Hertz
Ernie Grimo

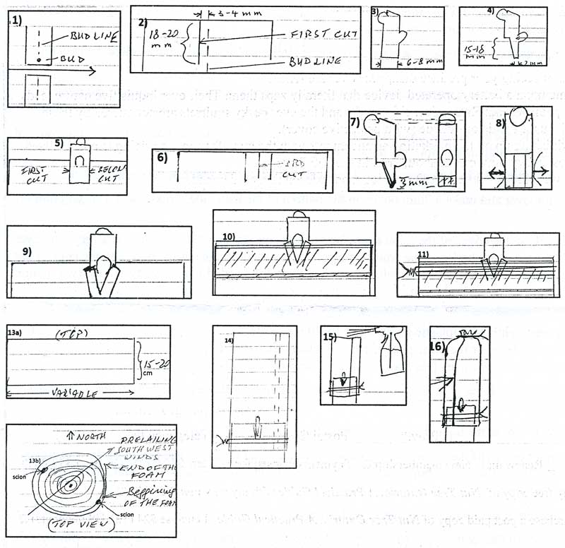
A stop on our summer meeting tour in 2011 was at Zelko Hertz's Niagara-on-the-Lake farm. We noticed that he had a lot of successful new grafts in his chestnut orchard. He was happy to show us how he did it. I will relate his method to you as best I can. Sketches of each step follow at the end.

Vigorous grown scion wood preferably pencil size diameter with well spaced buds has to be collected mid March when it is fully dormant and stored in plastic in the refrigerator until early May when the grafting season begins.

  1. He begins by cutting off the rootstock or branch at a 90° angle just under an existing or under a former bud spot. This alignment helps to orient the bud of the scion wood in line with former bud locations, thus creating a smoother graft union.
  2. He prepares the stock for a bark graft technique by making a vertical cut 18-20 mm long on the left of the bud line and about 3-4 mm away from it.
  3. He then prepares the scion by cutting off a 2 bud piece with a 15-30 mm base to prepare the cuts for insertion.
  4. Prepare the scion by cutting opposite side to the lower bud on the scion. Cut deeply into the scion creating a narrow wedge with a point at the end of the scion about 1-2 mm wide.
  5. Put the scion cut face against the stock bark where you made the original cut and make a second vertical cut as close to the scion as possible and the length of the scion.
  6. Make a third vertical cut in the centre of the 2 vertical cuts (along the bud line) the same length.
  7. Turn the scion over and make a 3mm notch on the bottom of the bark side. This makes a chisel point on the scion.
  8. Shave the bark on the edges of the scion exposing the cambium layer. (The cambium is a very thin layer between the inner green bark and the white sapwood). Slide the scion under the bark into the cuts on the stock. The lower bud should rest just below the top of the stock nestled in a 'V between the two sections of bark. If there is room place another scion on the opposite side of the stock in the same manner.
  9. Wrap this very tightly with plastic strips about 15-20 mm wide 2-3 times around. Zelko likes to use 6 _mil greenhouse plastic or the same plastic from the clear milk bags. Lap the plastic under itself and tighten. Then it won't unravel. (He does not like to use brads or nails to hold the scion in place.)
  10. Wrap bell wire (telephone wire) 1 -2 turns around the stock to hold the grafts tightly in place and twist the ends to keep it tight.
  11. Apply grafting wax to the top cut surfaces of the scions.
  12. Cut rectangular pieces of the foam used for underlay of laminate flooring. The height of the rectangles should be 15-20 cm. the width should be wide enough to go around the stock with enough foam to overlap several cm.
  13. Wrap the bottom of the foam sleeve tightly with wire.
  14. Spray the inside of the foam sleeve with 3 squirts of water and tie the top of the sleeve shut with wire.
  15. Check after 5 days if the conditions are very dry or windy, spray inside the sleeve again.
  16. In 2-3 weeks you should see that the inside of the wrap is 3/4 filled with new growth. Undo the bottom wire and remove the sleeve, the bottom wire and the plastic strip wrap holding the scion.
  17. Replace the sleeve holding it with the bottom wire. Remove the top wire but do not stretch open the sleeve.
  18. The new growth will work its way out of the top of the loose sleeve. Remove the sleeve when the growth is large enough for staking. After the sleeve is removed, apply grafting wax around the scion and exposed wood of the rootstock.
  19. If you have strong winds, prune the growth by 50% and leave a strong stake on for 2 or more years. (I use 2x4 lumber and tie the shoot with 1/4 inch rope.) It is safe to remove the stake when the stock is well healed over.

Provided by SONG. Feel free to copy with a credit.